Documentos
Empreendimento Habitacional Prestige Villa · Vila do Conde
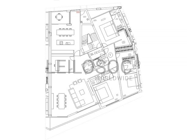
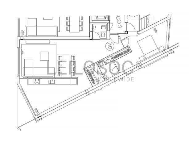
Este empreendimento habitacional inclui apartamentos e lojas de segmento alto, com áreas extremamente generosas, localizado na zona de maior expansão residencial do município, a uma curta distância de escolas, hipermercados, zonas de lazer e estações de metro.
Fisicamente, é composto por frações construídas (inacabadas) e por um terreno edificado com PH provisória.
- 14 FRAÇÕES INACABADAS (Tosco)
- 4 Apartamentos T1
- 4 Apartamentos T2
- 4 Apartamentos T3
- 2 Lojas
- TERRENO (Fundações e Cave)
- Prevê + de 4.000,00 m² de área edificável
- 21 Apartamentos (T1, T2 e T3)
- 6 Lojas
Envolvente:
- 2 minutos do Estádio do Rio Ave, Campo de Treinos dos Arcos e Pavilhão Desportivo de Vila do Conde.
- 3 minutos das Estações de Metro de Vila do Conde e de St.ª Clara
- 4 minutos do Instituto Politécnico do Porto: Escola Superior de Estudos Industriais e de Gestão, e Escola Superior de Media Artes e Design (ESMAD).
- 7 minutos das praias das Caxinas, da Olinda, Azul Norte e Sul, da Ladeira Norte, da Senhora da Guia e da Azurara.
Acessos:
- M525 · N13 · A28 · IC1 · N206 · A7 · IC5
Notas Informativas:
1) Este ativo beneficia de isenção de IMT e Imposto de Selo;
2) Quadro sinóptico de todas as frações e respetiva documentação, disponíveis para consulta prévia;
Lote Número
1
Referência
129096
Processo
DMI-1025/2023
Id do leilão
18352
Id do lote
129096
Empreendimento Habitacional Prestige Villa · Vila do Conde
---
2.000.000,00 €
Localização
Avenida Alexandre Herculano 337, 4480-878, Portugal
Métodos de pagamento
Informação do vendedor
44
2
2
Joana Ferreira
joanaferreira@leilosoc.pt
916 408 373 • Chamada para a rede móvel nacional


























