Choose an option
Choose an option
Apartamento T2 · Oliveira do Douro, Gaia
Apartamento T2 · Oliveira do Douro, Gaia
Apartamento T2 · Oliveira do Douro, Gaia
Apartamento T2 · Oliveira do Douro, Gaia
Apartamento T2 · Oliveira do Douro, Gaia
Apartamento T2 · Oliveira do Douro, Gaia
Apartamento T2 · Oliveira do Douro, Gaia

Descrição

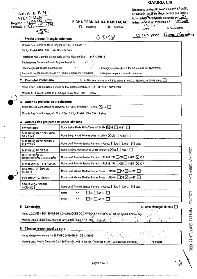
Apartamento T2 com Área Bruta Privativa de 94,30 e Área Bruta Dependente de 19,90 m², localizado no 5.º Andar


Características do Imóvel

- Organização interior prática e áreas bem dimensionadas, adaptando-se facilmente a diferentes necessidades;

- 2 WC’s, cozinha mobilada e lavandaria, oferecendo maior comodidade e funcionalidade no dia-a-dia. 

- Lugar de garagem e arrumos, assegurando soluções adicionais de estacionamento e arrumação. 


Envolvente

- Boa diversidade de comércio, serviços, estabelecimentos de ensino e transportes. 


Acessos

- Proximidade à A1, A29 e A44, permitindo ligações rápidas ao Porto, litoral e restantes zonas da região. 


Notas Informativas

- As imagens do interior refletem o estado geral do imóvel, anterior ao período de arrendamento;

- Contrato de arrendamento já denunciado. | Termo: 30/06/2027 | Renda: 879,60€/ mês;

- Certificado Energético: SCE235544629, válido até 09/10/2030;

- Valor de Condomínio: 44,91€/ mês;

- Licença de Utilização nº 964/2006;

- O resultado do leilão, independentemente de o valor mínimo ser atingido ou ultrapassado, permanece sujeito a validação/adjudicação após o término do evento;

- Após o término do leilão, e para efeitos de validação da proposta, o arrematante/adjudicatário deverá proceder ao preenchimento e assinatura do formulário KYC – Know Your Client, disponível para download no separador “Documento”.


Detalhes

Tipologia

T2

Área

94.3

Lote Número

35

Referência

166029

Processo

DMI-1051/2025

Id do leilão

40540

Id do lote

166029

Referência: 166029 / Lote Número: 35 / Data de término: 05/05/2026 17:00

Apartamento T2 · Oliveira do Douro, Gaia

---
Valor Mínimo

270.000,00 €

Valor base

288.000,00 €





Localização

Vila Nova de Gaia

Rua Sophia Mello Breyner 102, Vila Nova de Gaia, 4430-692, Portugal

Datas para visita

Por marcação

Métodos de pagamento

Informação do vendedor

12

1

1

Ana Mafalda

Ana Mafalda

anamafalda@leilosoc.com

915 078 113 • Chamada para a rede móvel nacional

Este site utiliza cookies para permitir uma melhor experiência por parte do utilizador. Ao navegar no site estará a consentir com a Política de Cookies.